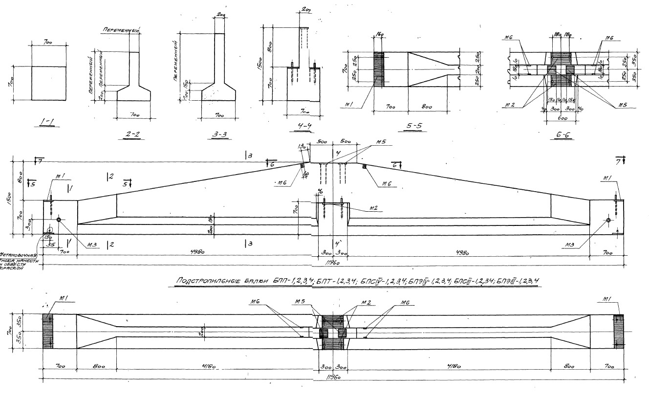
Балка подстропильная БПЭ III-3 к представляет собой железобетонный элемент, который используется для укрепления кровли зданий. Она обладает высокой прочностью и устойчивостью к воздействию различных атмосферных условий, что делает ее надежным выбором для строительства.
Балка подстропильная БПЭ III-3 к применяется в строительстве как несущий элемент для крепления стропил к стенам здания. Она обеспечивает устойчивость кровли и защиту от прогибов, обеспечивая долговечность и надежность конструкции. Этот элемент идеально подходит для использования в железобетонных конструкциях различных типов зданий и сооружений.









