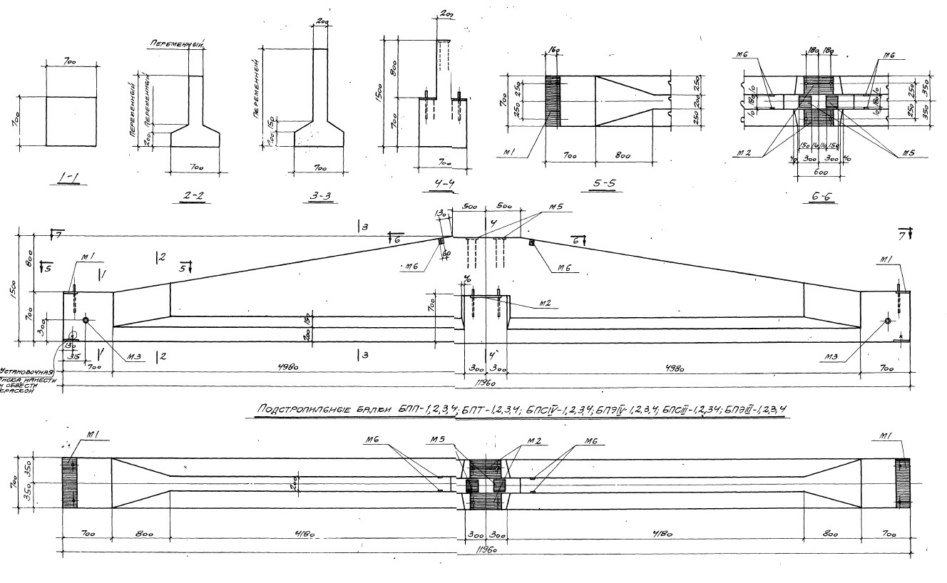
Балка подстропильная БПЭ III-4 к предназначена для использования в строительстве крыш и перекрытий. Изготовлена из железобетона, что обеспечивает ей высокую прочность и долговечность. Балка имеет специальное пазообразное соединение для удобства монтажа и обеспечения надежности конструкции.
Балка подстропильная БПЭ III-4 к широко используется в строительстве жилых, коммерческих и промышленных зданий. Она применяется для создания каркаса крыши или перекрытия, обеспечивая необходимую жесткость и надежность конструкции. Благодаря своим характеристикам балка подстропильная БПЭ III-4 к является незаменимым элементом при возведении зданий любого типа и назначения.









