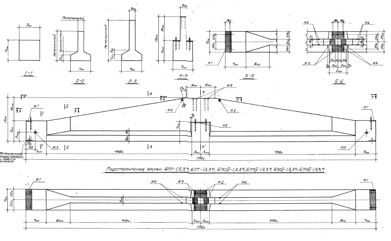
Балка подстропильная БПЭ IV-2 предназначена для использования в строительстве как несущий элемент кровли. Изготовлена из железобетона, что обеспечивает высокую прочность и долговечность конструкции. Балка имеет специальное пазообразное соединение для удобства монтажа и обеспечения надежной фиксации. Применяется для создания каркаса кровли и обеспечения необходимой поддержки стропилам. Идеально подходит для строительства как жилых, так и коммерческих зданий.









