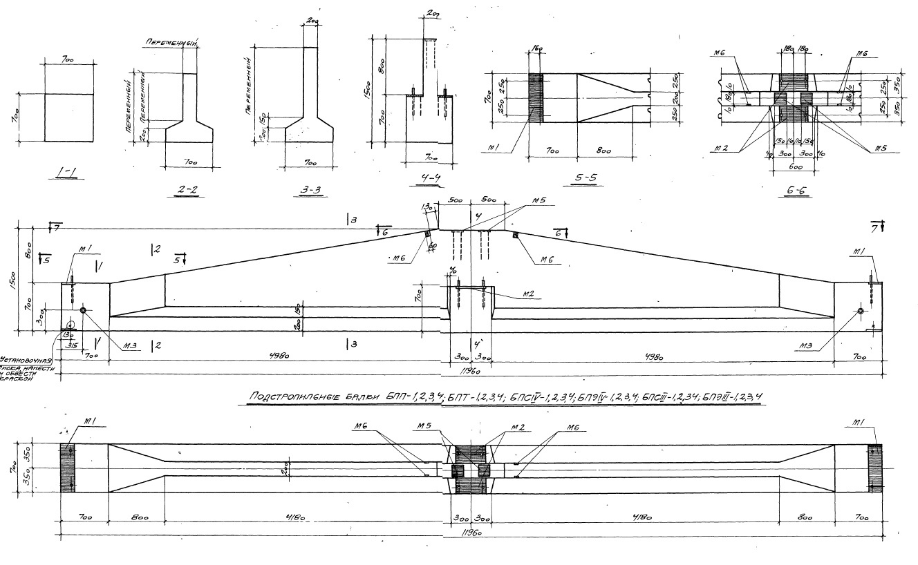
Балка подстропильная БПТ 2 к представляет собой железобетонный элемент, который используется для укрепления кровли здания. Она обладает высокой прочностью и устойчивостью к воздействию различных нагрузок. Балка имеет специальные отверстия для крепления к стропильной системе, что обеспечивает надежное крепление и устойчивость конструкции.
Балка подстропильная БПТ 2 к применяется в строительстве для укрепления стропильной системы кровли здания. Она используется как основной элемент для создания каркаса кровли и обеспечивает необходимую прочность и устойчивость конструкции. Балка подстропильная широко применяется в жилых, коммерческих и промышленных строениях для обеспечения надежной защиты от внешних воздействий и обеспечения долговечности кровли.









