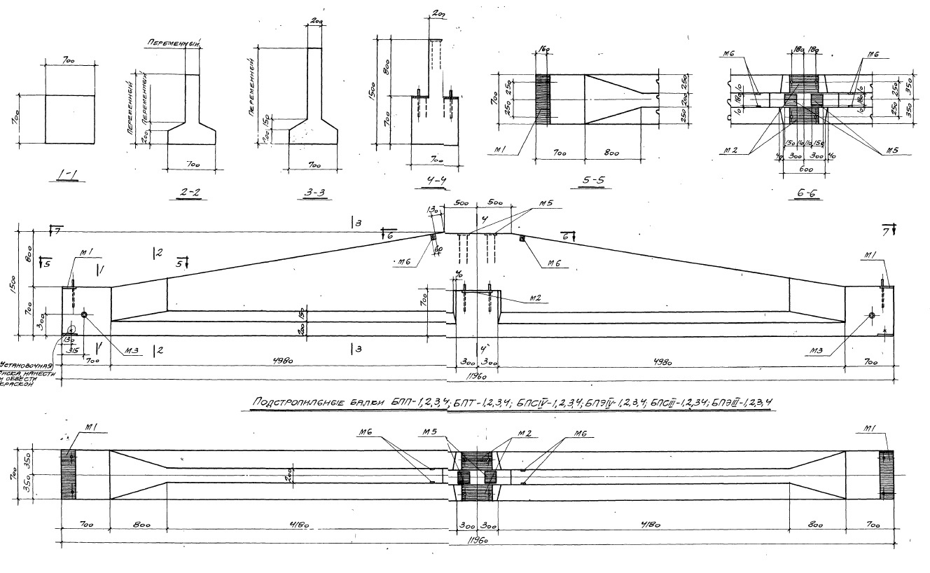
Балка подстропильная БПТ 4 представляет собой железобетонный элемент, который используется для укрепления кровли здания. Она обладает высокой прочностью и устойчивостью к различным нагрузкам, что делает ее незаменимым элементом конструкции.
Балка подстропильная БПТ 4 применяется в строительстве для создания прочной и надежной кровли. Она используется как опора для стропил и обеспечивает равномерное распределение нагрузки по всей конструкции. Балка подстропильная БПТ 4 идеально подходит для строительства как жилых, так и коммерческих зданий, обеспечивая им долговечность и надежность.









